耐腐蝕隔膜閥
一、襯氟隔膜閥 產品概述
本公司的G41F46襯氟隔膜閥是一種具有截斷功能的隔膜閥門,其吝惜閉件由鋼質閥瓣與軟質材料(橡膠和氟塑料復合)制成的隔膜組成,并將閥內腔與閥蓋內腔隔開,以達到截斷管內介質之目的。
一、襯氟隔膜閥基本系列為全襯里G41F46、EG41F46、型堰式和G45F46型直流式,其特點如下:
1、復合式襯氟隔膜閥將閥體下部內腔與閥蓋內腔隔開,并與之形成直流通道,使隔膜上部的閥桿、閥瓣等內件與介質隔開,省去填料密封結構,介質的內漏和外漏可同時免除;
2、利用FEP(Teflon)氟塑料與全成橡膠復合而成的隔膜的帶有Teflon氟塑料襯里層的閥門,可適于除“熔融堿金屬、元素氟”外的多種強腐蝕性介質。
3、做為執行元件的膜片,由于頻繁的啟閉,易產生疲勞斷裂,應視工況、介質的特性,進行定期替換。
4、氟塑料的防腐性能及使用溫度風“閥門及管路附件用氟塑料襯里性能表”。
二、設計規范
遵循GB 12239 / BS5156標準。
三、驅動方式
手動、氣動(常開或常閉)、電動。
|
|
|---|---|
| G41F46襯氟隔膜閥 (堰式) | G45F襯氟隔膜閥 (直流式) |
二、襯氟隔膜閥 基本型號
| 動作方式 | 產品型號 | 動作方式 | 產品型號 |
|---|---|---|---|
| 手動 | G41F3 | 直流式 | G45F3 |
| G41F46 | G45F46 | ||
| 氣動 | Q641F3 | 電動 | Q941F3 |
| Q641F46 | Q941F46 |
三、襯氟隔膜閥 技術規范
| 設計標準 | GB/T 12239 |
|---|---|
| 結構長度 | JB1688/GB12221 |
| 法蘭標準 | JB/T79-94 |
| GB9113.1-26 | |
| 檢驗試驗 | GB/T13927 |
| 驅動方式 | 手動、電動、氣動、常閉型、常開型 |
四、襯氟隔膜閥 主要零部件材料
| 序號 | 零件名稱 | 灰鑄鐵 | 鑄鋼 | 不銹耐酸鑄鋼 | 超低不銹鋼耐酸鑄鋼 | ||
|---|---|---|---|---|---|---|---|
| Z | C | P | R | P | R | ||
| 1 | 閥體/閥蓋 | HT250 | WCB | CF8 | CF8M | CF3 | CF3M |
| 2 | 閥瓣/閥桿 | 35 | 1cr13 | 1Cr18Ni9Ti | 1Cr18Ni12Mo2Ti | 00cr18Ni10 | 00Cr17Ni14Mo2 |
| 3 | 襯里/閥座 | PTFE(F4)、PCTFE(F3)、FEP(F46)、PFA(可溶性F4) | |||||
| 4 | 隔膜 | FEP(F46)/CR(氯丁橡膠)、PFA(可溶性F4)/FPDM(乙丙橡膠) | |||||
| 5 | 支架 | WCB | CF8 | CF8 | |||
| 6 | 閥桿螺母 | ZCuAI10Fe3 | ZCuAI10Fe3 | ZCuAI10Fe3 | |||
| 7 | 緊固螺栓 | 35 | 1Cr17Ni2 | 1Cr18Ni9Ti | |||
| 8 | 螺母 | 45 | 0Cr18Ni9 | 0Cr18Ni9 | |||
| 9 | 手輪 | WCB | WCB | WCB | |||
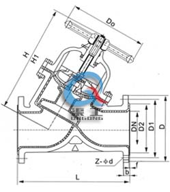
五、襯氟隔膜閥 結構尺寸圖
|
|
|---|---|
| G41F襯氟隔膜閥 (堰式結構圖) | G41F襯氟隔膜閥 (直流式結構圖) |
六、襯氟隔膜閥 主要外形尺寸
| 公稱通徑 | 標準值 | 參考值 | ||||||||||
|---|---|---|---|---|---|---|---|---|---|---|---|---|
| DN(mm) | NPS(inch) | L | D | D1 | D2 | f | b | Z-фd | d0 | H | H1 | WT(kg) |
| PN0.6MPa / PN1.0MPa | ||||||||||||
| 15 | 1/2 | 125 | 95 | 65 | 45 | 2 | 14 | 4-ф14 | 100 | 105 | 110 | 3.5 |
| 20 | 3/4 | 135 | 105 | 75 | 55 | 2 | 16 | 4-ф14 | 100 | 115 | 125 | 4 |
| 25 | 1 | 145 | 115 | 85 | 65 | 2 | 16 | 4-ф14 | 120 | 120 | 135 | 5.5 |
| 32 | 11/4 | 160 | 135 | 100 | 78 | 2 | 18 | 4-ф18 | 120 | 125 | 150 | 8 |
| 40 | 11/2 | 180 | 145 | 110 | 85 | 3 | 18 | 4-ф18 | 140 | 135 | 175 | 11 |
| 50 | 2 | 210 | 160 | 125 | 100 | 3 | 20 | 4-ф18 | 140 | 155 | 195 | 14 |
| 65 | 21/2 | 250 | 180 | 145 | 120 | 3 | 20 | 4-ф18 | 200 | 170 | 200 | 23 |
| 80 | 3 | 300 | 195 | 160 | 135 | 3 | 22 | 4-ф18 | 200 | 200 | 255 | 29 |
| 100 | 4 | 350 | 215 | 180 | 155 | 3 | 22 | 8-ф18 | 280 | 270 | 325 | 46 |
| 125 | 5 | 400 | 245 | 210 | 185 | 3 | 24 | 8-ф18 | 320 | 335 | 405 | 70 |
| 150 | 6 | 460 | 280 | 240 | 210 | 3 | 24 | 8-ф23 | 320 | 370 | 450 | 95 |
| 200 | 8 | 570 | 335 | 295 | 265 | 3 | 26 | 8-ф23 | 400 | 480 | 600 | 170 |
| 250 | 10 | 680 | 390 | 350 | 320 | 3 | 28 | 12-ф23 | 500 | 545 | 620 | 270 |
| 300 | 12 | 790 | 435 | 395 | 362 | 4 | 24 | 12-ф23 | 500 | 585 | 680 | 320 |
| PN1.6MPa | ||||||||||||
| 15 | 1/2 | 130 | 95 | 65 | 45 | 2 | 14 | 4-ф14 | 120 | 110 | 115 | 4 |
| 20 | 3/4 | 150 | 105 | 75 | 55 | 2 | 16 | 4-ф14 | 120 | 120 | 130 | 5 |
| 25 | 1 | 160 | 115 | 85 | 65 | 2 | 16 | 4-ф14 | 140 | 125 | 140 | 6 |
| 32 | 11/4 | 180 | 135 | 100 | 78 | 2 | 18 | 4-ф18 | 140 | 130 | 155 | 9 |
| 40 | 11/2 | 200 | 145 | 110 | 85 | 3 | 18 | 4-ф18 | 160 | 140 | 180 | 12 |
| 50 | 2 | 230 | 160 | 125 | 100 | 3 | 20 | 4-ф18 | 160 | 160 | 200 | 15 |
| 65 | 21/2 | 290 | 180 | 145 | 120 | 3 | 20 | 4-ф18 | 200 | 175 | 205 | 24 |
| 80 | 3 | 310 | 195 | 160 | 135 | 3 | 22 | 8-ф18 | 200 | 205 | 260 | 30 |
| 100 | 4 | 350 | 215 | 180 | 155 | 3 | 24 | 8-ф18 | 280 | 275 | 330 | 48 |
| 125 | 5 | 400 | 245 | 210 | 185 | 3 | 26 | 8-ф18 | 320 | 340 | 410 | 75 |
| 150 | 6 | 480 | 280 | 240 | 210 | 3 | 28 | 8-ф23 | 320 | 375 | 460 | 105 |
| 200 | 8 | 600 | 335 | 295 | 265 | 3 | 30 | 12-ф23 | 400 | 485 | 605 | 182 |
| 250 | 10 | 730 | 405 | 355 | 320 | 3 | 32 | 12-ф25 | 500 | 550 | 625 | 295 |
| 300 | 12 | 850 | 460 | 410 | 375 | 4 | 34 | 12-ф25 | 500 | 590 | 685 | 345 |
七、襯氟隔膜閥 產品選型
訂貨時請填寫《規格書》或注明以下內容:
1、若訂貨前未選定型號,請向我們提供使用參數:1.公稱通徑,2.流體性質(包括公稱壓力、溫度、粘度或酸堿性),3.閥體、閥芯材料。
2、若已經由設計單位選定我公司的G41F襯氟隔膜閥產品型號,請按型號直接向我司訂購;


滬公網安備31012002006630號
